
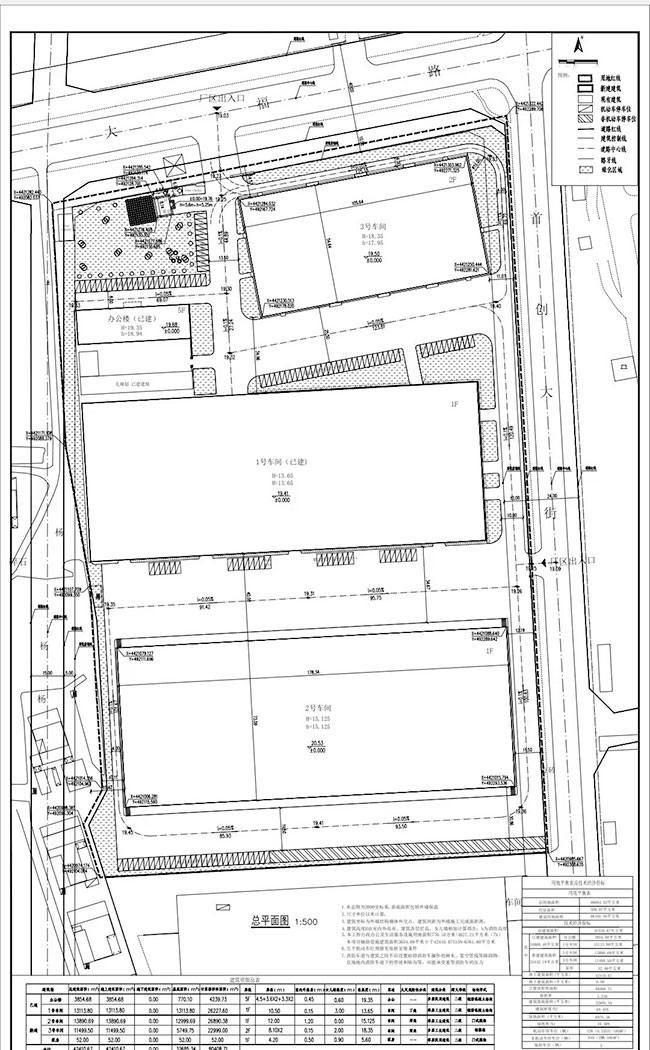
廊坊大厂开发区高台双边库房:
园区总占地100亩,办公住宿3854.68平米,一号库库房13113.8平米,二号库房13890.69平米。
未建设库房面积7000平米(3号库)
库房回车距离34米,库高10米。
1300 平米
100 平米
100 平米
100 亩
25400 平米
1000 平米
6000 平米
6300 平米
700 平米
1300 平米